Floor Plans  

 

Unit Type 1A   728 Sq Ft

 

Unit Type 1C  898 Sq Ft

 

Unit Type 2A  982 Sq Ft

 

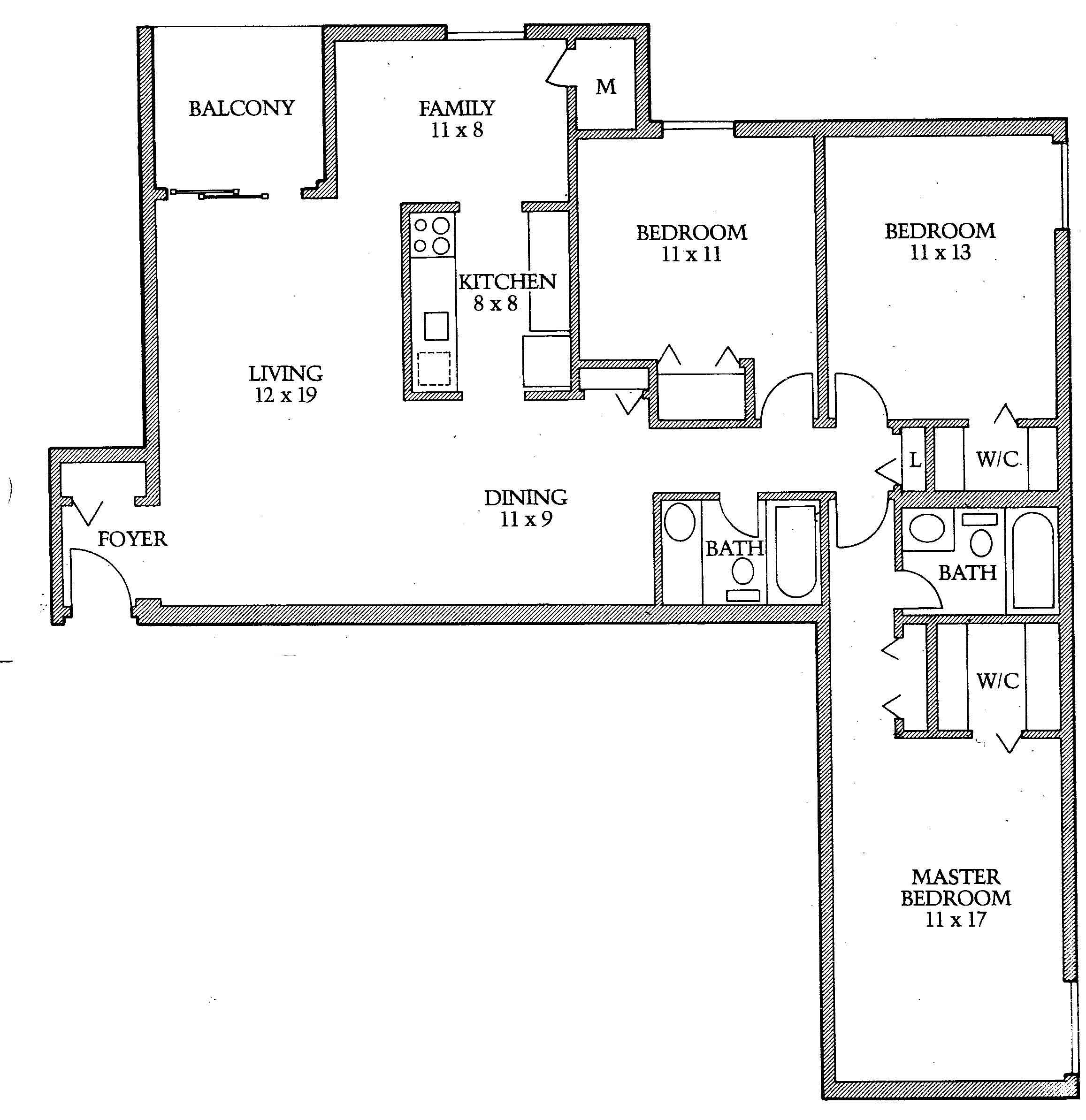
Unit Type 3A  1282 Sq Ft